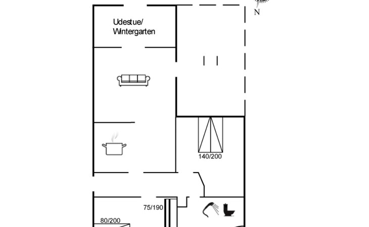
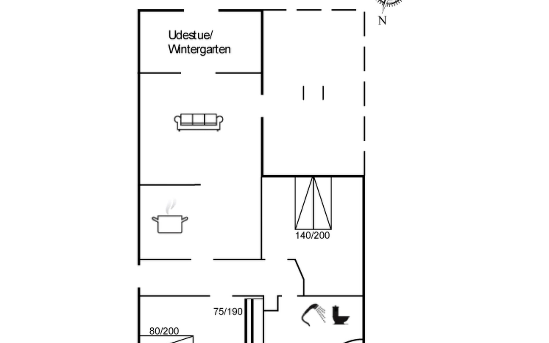
Single-family house, built in 1963. 400 m from the sea. Private: natural state property 2'500 m2. Terrace (45 m2), barbecue. In the house: washing machine. Parking at the house. Carport. Grocery 1.2 km. The owner does not accept any youth groups.
Terms of payment
Cancellation Policy
Similar vacation rentals
Haven't found your dream rental yet? We will search for you!
Haven't found your ideal vacation rental yet? No worries! Our Leisure Time Agents are happy to look for that one accommodation that meets all your wishes! So you can just sit back and enjoy your leisure time!
Request now