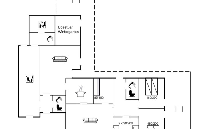
Einfamilienhaus, Baujahr 1971. 500 m vom Meer. Zur Mitbenutzung: Garten. Zur Alleinbenutzung: naturbelassenes Grundstück 700 m2, Garten (eingezäunt). Terrasse (40 m2), Grill, Feuerstelle. Im Hause: Sauna, Waschmaschine, Wäschetrockner. Parkplatz beim Haus. Lebensmittelgeschäft 600 m. Golfplatz 800 m. Der Besitzer akzeptiert keine Jugendgruppen.
Zahlungsbedingungen
Stornierungsbedingungen
Ähnliche Ferienhäuser
Ihre Traumunterkunft noch nicht gefunden? Wir gehen für Sie auf die Suche!
Sie haben Ihre ideale Ferienunterkunft noch nicht gefunden? Das macht nichts! Unsere Leisure Time Agents suchen gerne für Sie nach einer Unterkunft, die all Ihre Wünsche erfüllt! So können Sie sich zurücklehnen und Ihre leisure time genießen!
Jetzt bewerben