


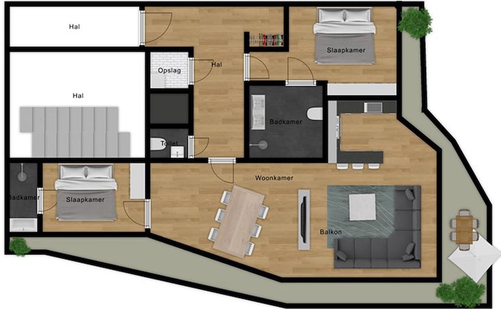
Die Ferienwohnung Sea Pearl Panorama ist eine komfortable Ferienwohnung für bis zu 4 Personen in Dormio Breskens Apartments & Penthouses. Die Ferienwohnung befindet sich im oberen Teil des Wohnkomplexes (Etagen 6 bis 10) und ist sowohl über eine Treppe als auch über einen Aufzug erreichbar. Die Ferienwohnung hat eine Nutzfläche von ca. 102 m2. Dank seiner Ecklage haben Sie unter anderem einen Panoramablick auf die Westerschelde und die Nordsee.
Das Wohnzimmer ist modern eingerichtet und verfügt über einen Smart-TV mit Streaming-Funktion. Außerdem gibt es eine gemütliche Essecke und eine offene Küche, die mit allen Annehmlichkeiten ausgestattet ist, darunter eine Kühl-Gefrierkombination, ein Kombi-Backofen, eine Nespresso-Maschine und eine Geschirrspülmaschine.
Vom Wohnzimmer aus gelangt man auf den Balkon, der sich an der Seite der Ferienwohnung erstreckt. So können Sie immer ein schönes Plätzchen finden, um die herrliche Aussicht auf die Westerschelde, die Nordsee und den Hafen von Breskens zu bewundern. Genuss garantiert!
Es gibt auch 2 Schlafzimmer, jedes mit jedes mit zwei Einzelbetten und einem eigenen En-Suite-Badezimmer.2 Ein En-Suite-Badezimmer hat eine begehbare Dusche, ein Doppelwaschbecken und eine Toilette. Das andere Badezimmer ist mit einer Dusche und einem Waschbecken ausgestattet. Außerdem gibt es eine separate Toilette.
In der Ferienwohnung gibt es einen Abstellraum mit Waschmaschine und Trockner. Natürlich können Sie während Ihres Aufenthalts kostenloses WLAN nutzen. Außerdem können Sie ein Auto kostenlos in der Tiefgarage parken (maximale Durchfahrtshöhe: 2.00 Meter), wo Sie auch einen allgemeinen, abschließbaren Fahrradschuppen für Ihr (elektrisches) Fahrrad finden.
Einige Ferienwohnungen verfügen über einen zusätzlichen Parkplatz oder eine private Ladestation für Ihr Elektroauto. Möchten Sie eine Unterkunft mit besonderen Annehmlichkeiten oder eine bestimmte Lage als Präferenz angeben? Wenn ja, wenden Sie sich bitte telefonisch an unser Kontaktzentrum. Für eine Vorzugsbuchung kann ein Aufschlag erhoben werden.
Die Aufteilung der Unterkunft kann variieren. Die Grundrisse und Bilder vermitteln einen guten Eindruck, dienen aber nur zur Veranschaulichung.
Zahlungsbedingungen
Stornierungsbedingungen
Ähnliche Ferienhäuser
Ihre Traumunterkunft noch nicht gefunden? Wir gehen für Sie auf die Suche!
Sie haben Ihre ideale Ferienunterkunft noch nicht gefunden? Das macht nichts! Unsere Leisure Time Agents suchen gerne für Sie nach einer Unterkunft, die all Ihre Wünsche erfüllt! So können Sie sich zurücklehnen und Ihre leisure time genießen!
Jetzt bewerben