🌿 Riverdome met privé sanitair (4 personen) ✨
Ultiem buitenleven? Dat beleef je in de Riverdome met privé sanitair (4 personen). Je bent van alle gemakken voorzien, maar ontwaakt midden in de Twentse natuur. In deze bijzondere dome ben je verzekerd van een vakantie die je nooit meer zal vergeten.
Een aantal Riverdomes staan aan de rand van onze pop-up glamping ‘Bij de buren’, waar een écht festivalsfeertje hangt met gezellige lampjes, knusse kampvuurplekken en een pop-up restaurant. Er zijn ook Riverdomes die elders op het park staan. Wil je zeker zijn van jouw favoriete plekje? Selecteer dan tijdens het boeken jouw spot op de kaart.
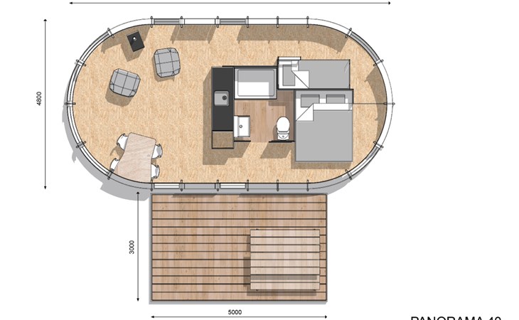
De Riverdome heeft de volgende slaapkamers:
• een slaapkamer met een tweepersoonsbed
• een slaapkamer met twee eenpersoonsbedden (geschikt tot ongeveer 12 jaar)
• ruimte om een kinderbedje bij te plaatsen
Aan alles is gedacht. Kook in je eigen keukentje met koelkast, geniet van je privé badkamer, relax in de zithoek of trek je terug in de dome wanneer het afkoelt of begint te regenen. Binnen zorgen gordijnen voor volledige privacy en buiten leef je heerlijk op je eigen terras.
Kom genieten van buitenleven, comfort en Twentse rust in de Riverdome met privé sanitair.
Wij geloven erin dat Slow Living het leven van iedereen beter maakt. Begin bij ons en leef thuis een beetje langzamer en gelukkiger verder.
Da’s pas slow.
Leuk opgezet de glamping, jammer dat het weer 2 dagen tegenviel.
Die Mitarbeiter sind super freundlich, und haben für die Kinder immer ein offenes Ohr.
Ons viel de ENORME vriendelijkheid op van werkelijk AL het personeel. We hebben de technische dienst even in moeten schakelen en die kwamen prachtig op de afgesproken tijd. Ook werd je constant op de hoogte gehouden via je mail. Zowel voor ons bezoek als errna. Een vakantie park om ZEKER aan te bevelen en er ZEKER nog een keer terug te komen.
DANK voor jullie gastvrijheid.
Vriendelijke groetjes Refina en Eric Stoute
Originele en heel leuke animatie voor de kinderen. Hele fijne yogales voor volwassenen. Goede horeca en fijne winkel met broodjes in de ochtend. De pop-up camping. Kids hebben genoten van het voetbalveld en de berg. Vriendelijke medewerkers.
Mooi weer, prachtige omgeving, lekker eten en lekker in de buurt
We hebben echt genoten van ons verblijf bij jullie.
De zaken zijn goed doordacht en jullie weten wat jullie gasten nodig hebben!
Wij hadden een vroege check in. Wij waren nog eerder en mocht al de tent in. Er was miscommunicatie over dat de tent al schoongemaakt was maar was niet zo. Er was een zeer vriendelijke mevrouw die haar excuus aanbood en wij mochten in het restaurant lekker wat gaan drinken op hun kosten. Dit was top geregeld en een uur later werd ik gebeld dat de tent klaar was en hadden we een hele fijne en brandschone tent! De ontvangst was ondanks miscommunicatie toch helemaal top. Het park is mooi en schoon, vriendelijk personeel, hele mooie receptie en streekwinkel, ontzettend leuke faciliteiten die je kunt huren, leuk zwembad en fijn restaurant. De ligging is prachtig. Het is erg jammer dat de 4 nachten voorbij zijn. Wij hadden veel langer willen blijven omdat het fantastisch was!!!
Alle faciliteiten en de verschillende verblijftenten en huisjes.
Gernell war alles wirklich top aber es wäre schön gewesen eine vernünftige Heizung zu haben wir haben noch nie so gefroren. Das war wirklich doof. Außerdem war direkt vor unserem Haus eine Baustelle sodass wir morgens ganz früh geweckt wurden 😔 aber ansonsten war es eine sehr schöne Unterkunft
Heerlijke sfeer, de app is handig en top ;). De tent super mooi en leuk. In elk weer. We hebben 30 graden gehad en noodweer met harde wind en stortbuien. De accommodatie bleef net zo leuk. Veel gebruikgemaakt van de faciliteiten en in de omgeving zitten zoveel leuke dingen. Bovendien is het park ook een droom voor kinderen. Super!
Ecodome was top, kinderen vonden het fantastisch! Faciliteiten en liggen waren super ondanks het weer wat wisselvallig was. Maar door de overdekte faciliteiten was het top!
Veel faciliteiten ook voor als het slecht weer is (waar wij gelukkig geen last van hadden 😊). Prijzen van activiteiten en verhuur zijn goed. Van restaurant en winkel echter aan de hoge kant. Leuk park voor zowel kinderen als volwassenen.
Alleen de 25 meest recente reviews worden weergegeven.
Betaalvoorwaarden
Annuleringsvoorwaarden
Soortgelijke vakantieverblijven
Droomverblijf nog niet gevonden? Wij gaan voor je op zoek!
Ben je jouw ideale vakantieverblijf nog niet tegengekomen? Niet getreurd! Onze Leisure Time Agents gaan graag voor je op zoek naar dat ene verblijf dat voldoet aan al je wensen! Zo kun jij gewoon achteroverleunen en genieten van je leisure time!
Nu aanvragen