type gebouw: eengezinshuis. perceeloppervlakte: 100m². bouwjaar: 1800. huiseigenaar woont op het perceel. geen groepsboeking. geen jeugdgroepen.
Interieur
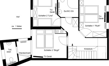
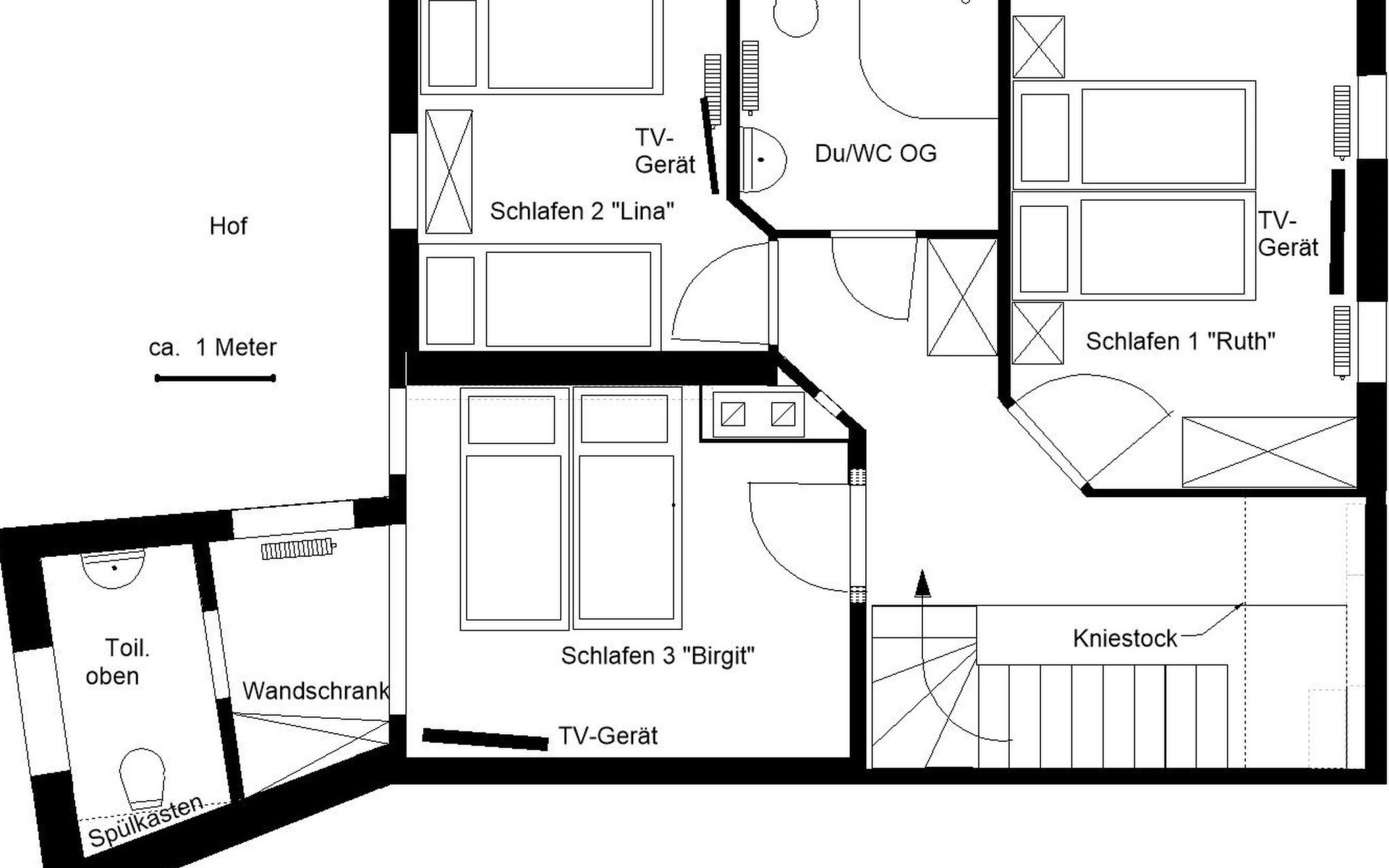
The house was extensively, thoroughly and lovingly renovated down to the last detail between 2019 and 2022, equipped with new condensing boiler technology and transformed into a little "holiday home treasure". It is located on the little-used exit road towards Hohegeiß, so it is quiet and yet close to the centre, almost opposite the bakery with its own café, where you can also get fresh bread rolls and cakes on Sundays, and less than a hundred metres from the village centre, where you will find a shopping centre, florist, pizzeria (with restaurant and delivery service), bistro, doctor, pharmacy, bank, hairdresser, beauty salon, physiotherapy and a public transport stop. Only a few houses inwards is a restaurant with lunch and dinner menu and within walking distance is the station of the Harz narrow-gauge railway ( HSB ), with which you can travel to the Brocken ( 1142 m above sea level ), to Wernigerode and Nordhausen.In the house there is only this one holiday flat, so you will not be disturbed by any other guests and can use the house and property for yourself.the holiday flat comprises two floors.on the ground floor there is a living room, dining room, kitchen, shower/WC and hallway.living and dining area are open to the kitchen. The living room facing south or the street is dominated by a cosy sitting area with couch, armchair and small table, the area is completed with satellite TV, radio and playback facilities for CD's and DVD's and a wood-burning stove, which is appreciated by guests in the winter months for cosy evenings. CD's, DVD's, books, board games and information material on the sights of the Harz are a welcome change on relaxing evenings, a rainy day or to get you in the mood for the next day of your holiday. A large dining table with comfortable chairs and a dining bench for 6 people and a restored vertico are located in the dining room, which is situated between the living room and kitchen. The open-plan kitchen includes a spacious kitchenette with a 4-burner ceramic hob and sink, as well as a fridge with freezer compartments, a microwave with baking function, dishwasher, coffee machine, toaster and kettle. Of course, you will also find plenty of crockery, glasses, cutlery, pots and pans, as well as tea towels and additional storage space for your food. 3 bathrooms are also located on this level. This is equipped with a shower, washbasin, toilet and washing machine. Through the hallway you reach the upper floor (1st floor) via an equally new staircase. There are 3 bedrooms here. Since it is a very old house, it was unfortunately not possible to raise all ceilings as part of the renovation, so that the ceiling heights vary between 2.00 m and 2.30 m. One bedroom is located to the south or street side. Another bedroom with double bed (180 x 200) and 2-door wardrobe with built-in wardrobe safe, armchair and small table is located to the north / or courtyard side. In the third bedroom there are two single beds and a small cupboard.on this floor there is another bathroom with shower, toilet and washbasin, so that there are 2 showers and 3 toilets in the whole house.in the corridor there is another chest of drawers for your personal belongings and a small cupboard safe.in all three bedrooms there is satellite TV and WLAN.From the kitchen you can access the outdoor area with a seating area for 6 people and barbecue facilities on a charcoal grill. You can also dry your laundry here if you need to wash it on site.The wood-burning stove in the living room, for which we are happy to provide wood (for a fee), is popular with guests in the cold season. 3 separate bedrooms with high-quality beds, satellite TV and plenty of storage space make the house ideal not only for holidays with the family but also for spending time with friends, parents and grandparents.The small holiday resort of Benneckenstein lies in a very quiet location in the Rappbode valley in the border triangle with Thuringia and Lower Saxony. Due to its central location, almost in the middle of the Harz Mountains, it is ideal for exploring the Harz Mountains to the north, south, east and west, not only by car, but also on foot, by mountain bike or ski, on the hiking trails or cross-country ski runs. Public transport is also a good option, as you can travel to all places in the district free of charge (HATIX) with your spa card. Not forgetting the Harz narrow-gauge railway, which runs through almost the entire Harz Mountains and takes you up to the Brocken (1142 m above sea level), to Wernigerode, Nordhausen and through the Selke valley to Quedlinburg, with many treasures along the way.You will soon realise that one holiday is not enough to get to know all the enchanted half-timbered towns with their special charm, the world below ground in stalactite caves, show mines and mining museums and the Harz Mountains from lofty heights on the treetop path, the climbing parks, from the cable cars and from the suspension bridge at the Rappbode Dam.If you would like to travel back in time, visit the numerous castles and castle ruins, palaces and cathedrals with their world-famous Danube treasures, churches / stave churches, imperial palaces and monasteries. This small selection of possible sights should show you that the Harz Mountains, small on the map, are large and rich in sights worth seeing, in natural beauty and natural wonders, in history and the present.