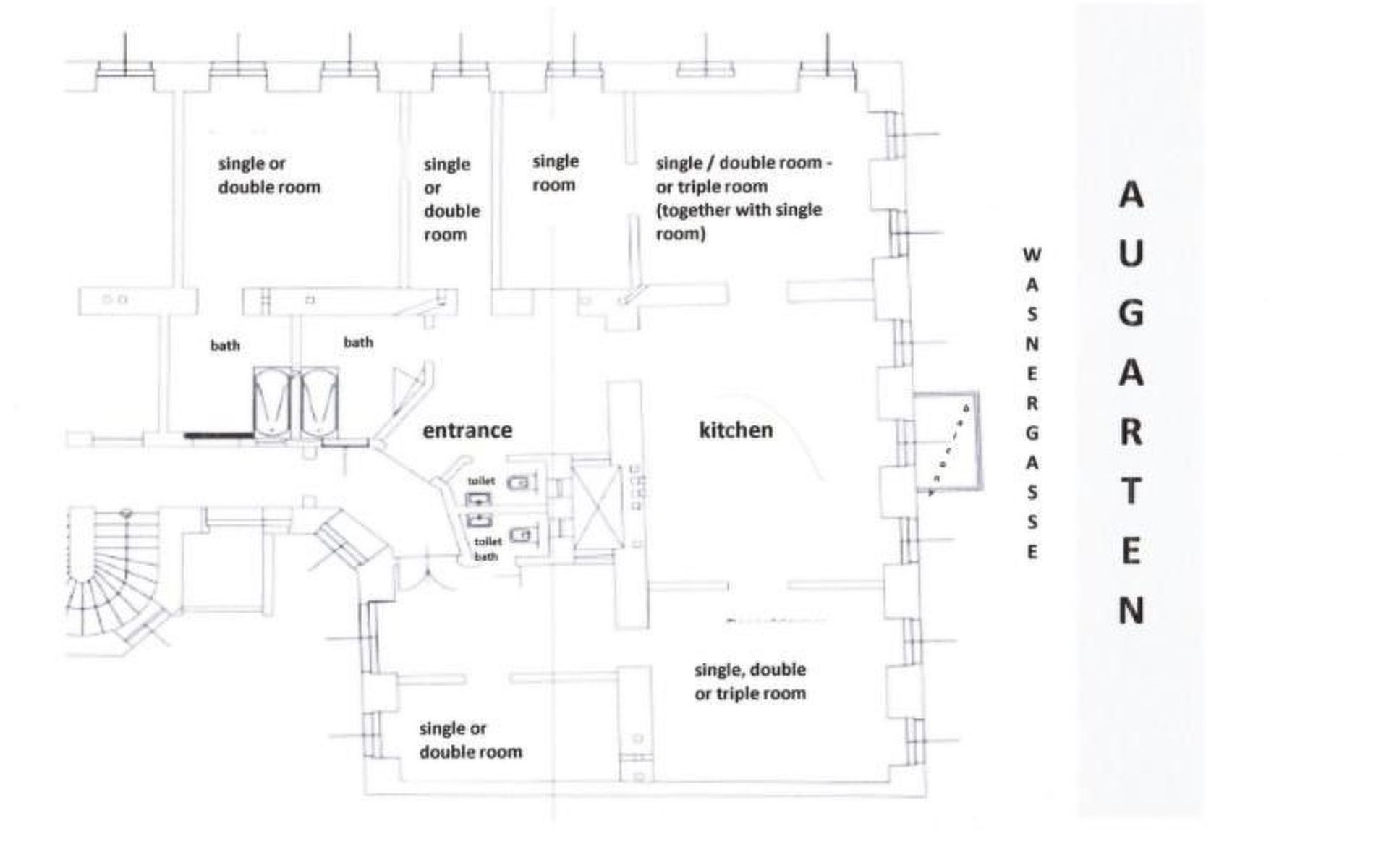
Ausgefallene Wohnung 1 Ausgefallene Wohnung 2 Ausgefallene Wohnung 3